
NEUBAU
Einfamilienhaus im Ortskern von Schweich
Bauherr: privat
Planung und Realisierung: Herres&Pape Architekten PartGmbB
Bauzeit / Fertigstellung: September 2020- Juni 2023
Wohnfläche: 163m²
Fotograf: Lukas Huneke Photography
PROJEKT
Im alten Ortskern von Schweich hatte die Bauherrschaft ein wunderschönes Grundstück für ihr neues Heim: direkt am Bach, in einer ruhigen Seitenstraße, und dennoch zentral gelegen. Einziges Problem: Wie passt das Haus in das kleine und beinahe dreieckige Baufenster?
Die örtlichen Begebenheiten ergaben einen L-förmiger Grundriss; ein Carport verlängert das Haus optisch in Richtung der Brücke. Dadurch entstand zugleich eine geschützte Terrasse zum Bach. Die Holzelemente des Carports wiederholen sich im gegenüberliegenden Eingangspavillon und dem Gartenhäuschen. Dezente Putzfaschen um die Fenster herum sind ein Zitat der traditionellen Sandsteingewände der alten Häuser in der Nachbarschaft.
Der „Herzraum“ im Erdgeschoss ist Dreh- und Angelpunkt. Hier steht der große Esstisch, hier ist das große Fensterelement zum Garten. Die Treppe steht als Gestaltungselement im Raum, und die Feuerstelle verleiht Atmosphäre und Wärme. Küche und Wohnzimmer, beide relativ klein, sind seitlich angedockt. Flure gibt es kaum.
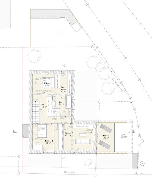
Im Obergeschoss liegen insgesamt 3 Zimmer, eines davon als Elternschlafzimmer mit angegliederter Umkleide/Schrankraum. Ein Badezimmer komplettiert das OG.
Im Obergeschoss ist der Dachraum bis unter den First offen, so dass in der Mitte der Räume eine Höhe von über 4,00 m besteht. Das verleiht den Räumen Großzügigkeit; so konnte der gesamte Baukörper im Volumen stark verkleinert werden, was den Kosten und der Proportion stark zugutekommt.
Im Äußeren wurde Wert darauf gelegt, das Gebäude als gut proportionierten Körper in die umgebende Bebauung einzufügen. Dies wurde vor allem durch das Satteldach erreicht. Zudem hilft das Satteldach, das Volumen des Hauses zu reduzieren und das Haus weniger wuchtig erscheinen zu lassen. Das Haus ist modern, und fügt sich dennoch in die Umgebung ein.
PLANUNG / KONZEPT
KONZEPT
das Raumgefüge und auch die Fassadenabwicklung wurde mittels eines Modelles erabeitet
BAU PROZESS
Hier ein kleiner Einblick....





































































